Maison 4 pièces 98m2
Prix
136 240 €
Ref SFN-0025659
Description du bien
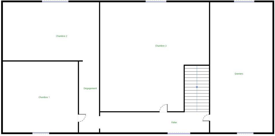
Votre conseillère Stéphanie Fortin Noovimo, vous propose: En plein centre de Legé, cette maison en pierre de 98m2, à rénover entièrement, offrant de belles possibilités d’aménagement. Elle se compose au rez-de-chaussée d'un salon, d'une salle à manger avec un coin cuisine, une salle d'eau et WC séparé et à l’étage trois chambres et un grenier. Garage et dépendances complètent l’ensemble. Édifiée sur un terrain clos d’environ 1 100 m², la propriété permet le détachement d’une parcelle constructible d’environ 900 m² (certificat d’urbanisme positif). Maison reliée au tout à l'égoût, service d'eau et Puits. Idéal projet de rénovation ou d’investissement. A visiter sans tarder!
Legé est une commune de 4 700 habitants, dynamique et solidaire. Vous y trouverez les écoles élémentaires, primaires et collèges ainsi que diverses associations sportives, les commerces de proximité avec un centre commercial, les services de santé, un cinéma, une bibliothèque, une piscine, un parc public et un plan d'eau avec aire de pique-nique, parcours de randonnées, pêche,...- Situé à 40 minutes des plages et de Nantes, à 20 minutes de Challans et 25 minutes de la Roche sur Yon. Honoraires 4,80% de 130 000€ (prix de vente honoraires exclus). Soit 136 240€ honoraires inclus. Honoraires à la charge de l'acquéreur. Ref:25659. Votre agent indépendant Noovimo. Nos honoraires sont consultables sur www.noovimo.fr. Les informations sur les risques auxquels ce bien est exposé, sont disponibles sur le site Géorisques: http://www.georisques.gouv.fr - Annonce rédigée et publiée par un Agent Mandataire indépendant inscrit au RSAC sous le n°843444357
Annonce rédigée et publiée par un Agent Mandataire
Descriptif du bien
4
Pièces
98
m²
3
Chambres
| Label | Value |
|---|---|
| Code postal | 44650 |
| Surface habitable (m²) | 98 m² |
| surface terrain | 1 103 m² |
| Nombre de chambre(s) | 3 |
| Nombre de pièces | 4 |
| Nombre de niveaux | 2 |
| Label | Value |
|---|---|
| Nb de salle d'eau | 1 |
| Cuisine | SEPAREE |
| Mode de chauffage | Fioul |
| Type de chauffage | TRAD_TYPE_CHAUFF_CHAUDIERE |
| Format de chauffage | Individuel |
| Murs mitoyens | 1 |
| Nombre de garage | 1 |
| Cave | OUI |
| Surface cave (m²) | 13 |
| Exposition | SUD |
| Année de construction | 1900 |
| Quartier | Legé centre |
| Label | Value |
|---|---|
| Copropriété | NON |
| Label | Value |
|---|---|
| Prix de vente honoraires TTC inclus | 136 240 € |
| Prix de vente honoraires TTC exclus | 130 000 € |
| Honoraires TTC à la charge acquéreur | 4,8 % |
| Taxe foncière annuelle | 398 € |
| Label | Value |
|---|
Contacter l'agence
Les informations recueillies sur ce formulaire sont enregistrées dans un fichier informatisé par La Boite Immo agissant comme Sous-traitant du traitement pour la gestion de la clientèle/prospects de l'Agence / du Réseau qui reste Responsable du Traitement de vos Données personnelles.La base légale du traitement repose sur l'intérêt légitime de l'Agence / du Réseau.Elles sont conservées jusqu'à demande de suppression et sont destinées à l'Agence / au Réseau.Conformément à la loi « informatique et libertés », vous disposez des droits d'accès, de rectification, d'effacement, d'opposition, de limitation et de portabilité de vos données. Vous pouvez retirer votre consentement à tout moment en contactant directement l'Agence / Le Réseau.Consultez le site https://cnil.fr/fr pour plus d'informations sur vos droits.Si vous estimez, après avoir contacté l'Agence / le Réseau, que vos droits « Informatique et Libertés » ne sont pas respectés, vous pouvez adresser une réclamation à la CNIL.Nous vous informons de l'existence de la liste d'opposition au démarchage téléphonique « Bloctel », sur laquelle vous pouvez vous inscrire ici : https://www.bloctel.gouv.frDans le cadre de la protection des Données personnelles, nous vous invitons à ne pas inscrire de Données sensibles dans le champ de saisie libre.
