< Retour
Maison 7 pièces 176m2
Prix
258 000 €
Ref SFN-0025352
Loading...
Nouveauté
Description du bien
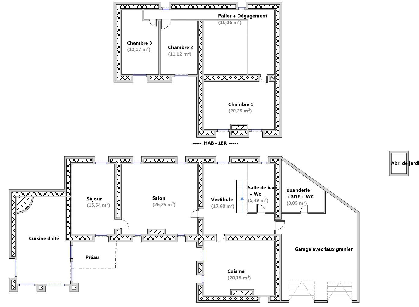
Votre conseillère Stéphanie Fortin Noovimo, vous propose à Saint-Etienne-du-Bois: Au calme de la campagne, découvrez cette maison familiale de 176 m², exposée plein sud, sur un beau terrain arboré de 1843m². Le rez-de-chaussée propose : cuisine, salon, salle à manger, chambre, salle de bain et WC, ainsi qu'une buanderie avec salle d’eau et WC. À l’étage : trois chambres. Un garage de 40m² est attenant et une cuisine d’été avec vue sur la nature vient compléter l’ensemble, idéale pour vos moments conviviaux. Le terrain, composé d’une parcelle principale avec un Puits et d’un jardin complémentaire de 590m², offre un joli potentiel pour un potager ou des animaux. Maison à rénover, avec principalement l’isolation des murs extérieurs à prévoir : l’occasion d’en faire un lieu de vie à votre image, dans un environnement paisible. Honoraires 8 000€ fixe et 250 000€ (prix de vente honoraires exclus). Soit 258 000€ honoraires inclus. Honoraires à la charge de l'acquéreur. Ref:25352.Votre agent indépendant Noovimo. Nos honoraires sont consultables sur www.noovimo.fr. Les informations sur les risques auxquels ce bien est exposé, sont disponibles sur le site Géorisques: http://www.georisques.gouv.fr - Annonce rédigée et publiée par un Agent Mandataire indépendant inscrit au RSAC sous le n°843444357
Annonce rédigée et publiée par un Agent Mandataire
Descriptif du bien
7
Pièces
176
m²
4
Chambres
| Label | Value |
|---|---|
| Code postal | 85670 |
| Surface habitable (m²) | 176 m² |
| surface terrain | 2 433 m² |
| Nombre de chambre(s) | 4 |
| Nombre de pièces | 7 |
| Nombre de niveaux | 2 |
| Vue | campagne |
| Label | Value |
|---|---|
| Nb de salle de bains | 1 |
| Nb de salle d'eau | 1 |
| Cuisine | SEPAREE |
| Mode de chauffage | Electrique, Bois |
| Type de chauffage | Radiateur, Cheminée |
| Format de chauffage | Individuel, Individuel |
| Nombre de garage | 1 |
| Nombre de parking | 2 |
| Exposition | SUD |
| Année de construction | 1900 |
| Terrain arboré | OUI |
| Label | Value |
|---|---|
| Prix de vente honoraires TTC inclus | 258 000 € |
| Prix de vente honoraires TTC exclus | 250 000 € |
| Honoraires TTC à la charge acquéreur | 3,2 % |
| Taxe foncière annuelle | 737 € |
| Label | Value |
|---|
Contacter l'agence
Les informations recueillies sur ce formulaire sont enregistrées dans un fichier informatisé par La Boite Immo pour la gestion clientèle/prospect de l'agence. Elles sont conservées jusqu'à demande de suspension et sont destinées à l'agence Conformément à la loi « informatique et libertés », vous pouvez exercer votre droit d'accès aux données vous concernant et les faire rectifier en contactant : Le DPO de La Boite Immo. Nous vous informons de l'existence de la liste d'opposition au démarchage téléphonique « Bloctel », sur laquelle vous pouvez vous inscrire ici : https://www.bloctel.gouv.fr/
